Este proyecto fue llevado a cabo en Enginy Assessors en Barcelona para la empresa asturiana Oquendo, que se dedica a la elaboración, envasado y distribución de café.
Surge de la visión de la compañía, que deseando emprender un nuevo rumbo en el mercado de las Coffee Shops, busca crear una marca que resalte el excelente producto que ya ofrece y tenga la oportunidad de incursionar en el creciente modelo de negocio de las cafeterías gourmet en China.
Así nace The Coffee Espression; un concepto de cafetería especializada en la venta de los mejores cafés del mundo para disfrutar en el lugar o llevar a granel. También ofrece una variedad de productos como bebidas frías y una amplia selección de aperitivos complementarios que refuerzan y amplían el impacto de la marca en el mercado objetivo.


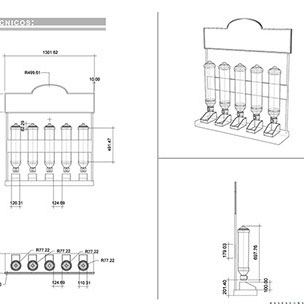
Para este proyecto, también fue esencial diseñar varias piezas de mobiliario y accesorios a medida para garantizar que el concepto definido a nivel de diseño se mantuviera coherente en toda la tiendaa:
Cliente: Cafés Oquendo - Asturias, España.
Empresa a cargo del proyecto: Enginy Assessors S.L
Director de proyecto: Francesc Rufas.
Dirección de arte: Francesc Rufas.
Apoyo a dirección de arte: Ricardo Bernal
Diseño industrial: Ricardo Bernal.
Personal involucrado por parte del cliente:
Dirección comercial: Juan Díaz Rodríguez.
Responsable de expansión de franquicias: Marco Paredes.
Técnico de franquicias: Joy Zhang.
Tanto los diseños, como el contenido, artes y demás elementos comunicativos utilizados en la presente página web, se encuentran regulados por las leyes de derecho de autor. (Ley 23 de 1982 y ley 44 de 1994, Colombia). Las obras personales cuentan también con la protección de Creative Commons. Apoyemos el trabajo de creativos emergentes utilizando éste medio de protección. Cualquier publicación, mención, y/o utilización de la totalidad o alguna parte particular de la información expuesta en ésta página, ha de ser notificada vía correo electrónico para su aprobación.